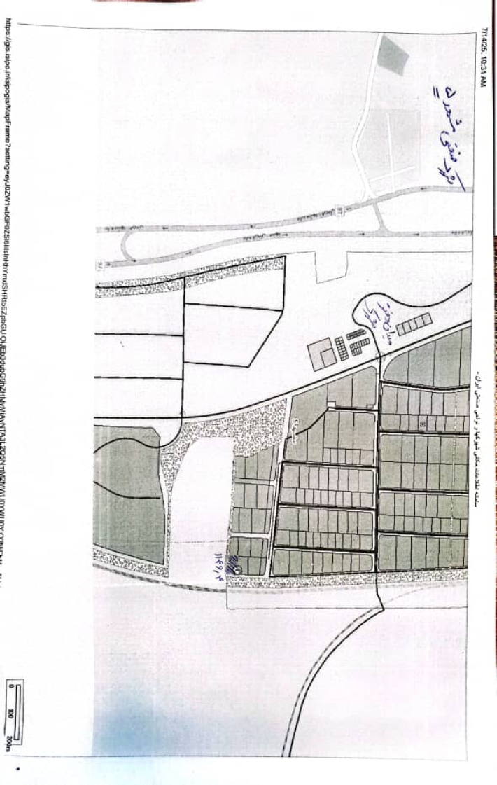
زمین در شهرک صنعتی مشهد 5

فوری
قیمت: 7450,000,000 تومان 7450,000,000 تومان
اطلاعات تماس
تاریخ درج 1404/05/20 ساعت 09:49
مشخصات
متراژ بنا 2761
پارکینگ ندارد
جزئیات آگهی
شناسه: 36607
تعداد نمایش: 51
انقضا: 1404/07/18 ساعت 09:52
دسته: املاک
توضیحات
یک قطعه زمین در شهرک صنعتی مشهد 5 به متراژ2761 متر مربع با مجوز ساخت 1500 متر مربع دارای زیر ساخت آب و برق در فاز غذایی
استان
خراسان رضوی
30 کیلومتری جاده فریمان شهرک صنعتی مشهد 5
1 ماه پیش
آگهی های مرتبط
فروش خانه ویلایی در نیروگاه شیخ آباد ولیعصر فروش خانه ویلایی در نیروگاه...
6,000,000,000 تومانتوحید
1404/05/26 ساعت 18:28
فروش و قیمت روز آهن آلات فروش و قیمت روز آهن آلات
قیمت توافقی
اوین
فوری1404/04/07 ساعت 15:16
زمین مسکونی 240 مترزمین مسکونی 240 متر
550 تومانسوسنگرد
1404/07/14 ساعت 19:33
ملک شما را سه روزه میفروشیمملک شما را سه روزه میفروشیم
قیمت توافقی
تهران
1403/05/13 ساعت 14:59
آپارتمان فروشی تک واحدهآپارتمان فروشی تک واحده
2,600,000,000 تومانتهران
1404/05/12 ساعت 15:23
فروش زمین مسکونی مناسب برای ویلاسازی و بومگردی فروش زمین مسکونی مناسب برای...
2,440,000,000 تومانشاهرود
فوری1404/05/24 ساعت 11:29